Diseño Interior en la Malagueta | Luz y funcionalidad

Diseño interior La Malagueta Salón

Proyecto de Diseño Interior en la Malagueta | Luz y funcionalidad

En este proyecto de diseño interior en La Malagueta (Málaga), trabajamos en una vivienda de 115 m2 para mejorar su distribución, funcionalidad y estética. Nuestra intervención incluyó una reorganización integral que respondió a las necesidades específicas de los propietarios, maximizando el uso de los espacios y aportando un toque de renovación moderno y elegante.

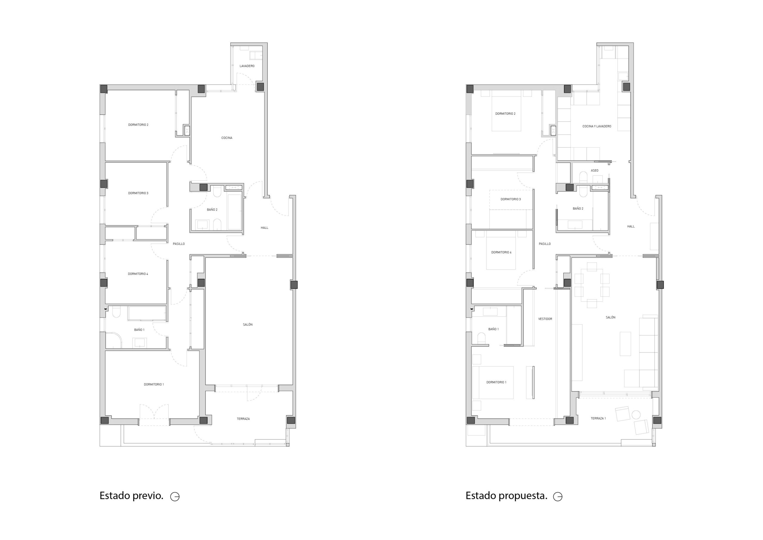
La vivienda, en su estado original, contaba con una distribución muy funcional. Pues se divide entre zona de día y zona de noche, con un gran pasillo en forma de T que distribuye todos los espacios y una gran terraza con orientación este, común para el salón y el dormitorio principal.

Las premisas del cliente eran principalmente dar protagonismo al salón y al espacio de terraza y obtener un aseo auxiliar de invitados. La propuesta final, mucho mas ambiciosa reorganiza todos los espacios con el fin de potenciar aun más la diferencia entre día y noche.

Diseño interior La Malagueta Planta antes y despues

ZONA DE DÍA

Rediseño del Salón

El salón fue concebido como el corazón de la vivienda, combinando confort y funcionalidad. Se optó por una distribución abierta que conecta con la terraza principal, permitiendo una entrada generosa de luz natural. El mobiliario fue cuidadosamente seleccionado para crear un ambiente acogedor, con sofás modulares que permiten adaptarse a diferentes configuraciones. Además, se incorporó una pared multimedia que integra la televisión y elementos decorativos, maximizando el uso del espacio y manteniendo una estética moderna y limpia.

Creación de un Aseo y Reorganización de Cocina y Lavadero

Uno de los puntos clave de este proyecto fue la adición de un aseo, una mejora funcional esencial en viviendas de estas dimensiones. Para lograrlo, se redistribuyó el espacio existente en la cocina y el lavadero. Esta reorganización permitió no solo optimizar la funcionalidad de estas áreas, sino también mantener una fluidez en el diseño general de la vivienda. La cocina se diseñó con una configuración más compacta, pero eficiente, y el lavadero fue integrado de manera armónica.

Conexión por la Terraza

Equipada con un cerramiento de cortina de cristal tipo Lumon, lo que permite disfrutar del espacio durante todo el año sin perder las vistas al exterior. Este sistema garantiza una excelente entrada de luz natural y una transición fluida entre el interior y el exterior, haciendo de esta terraza un lugar perfecto para relajarse o socializar.

.

ZONA DE NOCHE

Transformación del Dormitorio Principal

El dormitorio principal también fue objeto de una transformación significativa. Se desplazó el muro principal, regularizando el espacio y ganando espacio a los pies de la cama y permitiendo un hueco mayor hacia la terraza. Además, se creó un tabique de lamas que organiza el espacio, proporcionando soporte para una cómoda y una TV. Estas modificaciones no solo mejoraron la distribución, sino que también aportaron una sensación de amplitud y orden.

Creación de un Vestidor de Entrada

Para maximizar la comodidad y el almacenamiento, se decidió restar entre algunos centimetros del baño principal y destinarlos a la creación de un vestidor en la entrada del dormitorio principal. Este cambio permitió dotar a la vivienda de un espacio adicional para guardar ropa y accesorios, sin comprometer en exceso el tamaño del baño. La distribución del vestidor fue diseñada cuidadosamente para ser práctica y estética, utilizando acabados que complementan el estilo general de la vivienda.

Modificaciones en los Dormitorios Secundarios

Se realizaron cambios en los tabiques y las puertas de los dormitorios secundarios para obtener armarios amplios en cada estancia y una regulación de superficies entre las tres habitaciones. Esta modificación optimizó el almacenamiento y mejoró la distribución interior de las habitaciones, manteniendo la funcionalidad y la comodidad.

El resultado de este proyecto de diseño interior en La Malagueta es una vivienda completamente transformada, donde cada metro cuadrado está aprovechado al máximo. Los cambios introducidos no solo mejoraron la funcionalidad de la vivienda, sino que también aportaron un toque de modernidad y elegancia que se adapta perfectamente al estilo de vida de sus propietarios.

Este proyecto es un claro ejemplo de cómo una planificación cuidadosa y un diseño creativo pueden convertir una vivienda convencional en un espacio único y funcional, ideal para disfrutar de la vida en una de las zonas más exclusivas de Málaga.

.

Un resultado a medida en una ubicación exclusiva

El resultado de esta reforma en La Malagueta es una vivienda que se siente mucho más grande de lo que dicen sus 115 metros cuadrados. Hemos pasado de una planta compartimentada a un hogar fluido, donde la luz circula libremente y cada rincón tiene un propósito definido.

La combinación de materiales nobles, como la madera presente en los panelados y el suelo, junto con una paleta de colores neutros y toques de piedra negra en la cocina, dota al conjunto de una elegancia atemporal.

En DIKA, transformamos necesidades en soluciones de diseño. Si tienes una vivienda en Málaga y sientes que su distribución no saca todo su potencial, estamos aquí para ayudarte a reimaginarla.

¿Estás listo para renovar tu hogar? Cuéntanos tu proyecto y hagámoslo realidad.

CLIENTE

Particular

LOCALIZACIÓN

Málaga (La Malagueta)

DIMENSIONES

115 m²

Categoría

Interiorismo, Viviendas
Diseño interior La Malagueta Volumetria Diseño interior La Malagueta Dormitorio principal Diseño interior La Malagueta D secundario Diseño interior La Malagueta Cuarto de baño Diseño interior La Malagueta Cocina