Diseño de Interiores Málaga | Verano Infinito en Torre del mar
Proyecto de Diseño de Interiores Málaga | Verano Infinito en Torre del mar
El verano en la Costa del Sol no es solo una estación, es un estado mental. Cuando nuestros clientes acudieron con este proyecto en Torre del Mar, el objetivo estaba claro: querían capturar esa luz, esa calma y esa brisa marina para convertirla en su hogar. Buscaban un refugio donde el buen tiempo fuera el protagonista, pero sin renunciar a la funcionalidad de una vivienda moderna capaz de adaptarse a las visitas y al día a día estival.
Este proyecto de diseño de interiores en Málaga es la prueba de que, con una buena planificación, los metros cuadrados se multiplican y las vistas se convierten en parte del mobiliario. Te invitamos a recorrer esta vivienda pensada para disfrutar, descansar y, sobre todo, mirar al mar.
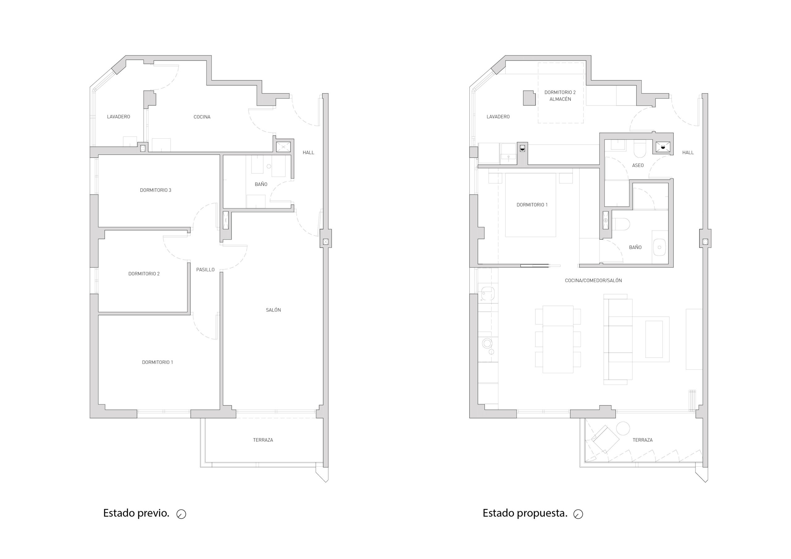
Si observamos el estado previo de la vivienda, nos encontrábamos con una distribución compartimentada, un largo pasillo que robaba luz y metros, una cocina aislada y estancias cerradas sobre sí mismas. Por tanto, la reforma debía liberar espacio. Para ello eliminamos la tabiquería innecesaria con la idea de unificar todo en un gran espacio social. Al suprimir los pasillos, no solo ganamos amplitud visual, sino que permitimos que la luz natural que entra por la terraza inunde el comedor, el dormitorio principal y llegue hasta la entrada de la vivienda.
Un Salón que respira Salitre y Luz
La joya de la corona de esta intervención es, indudablemente, la zona de día. Al tratarse de una vivienda destinada al disfrute del buen tiempo, era vital desdibujar la frontera entre el interior y el exterior.
Hemos diseñado un espacio abierto donde salón, comedor y cocina dialogan fluidamente. La paleta de colores, dominada por los tonos arena, blancos rotos y maderas claras, actúa como un lienzo neutro que no compite con el verdadero cuadro de la casa: el mar.
La Terraza: El corazón del apartamento
La terraza se ha integrado visualmente en el salón gracias a un cerramiento de cortinas de cristal sin perfiles verticales. Esto permite disfrutar de las impresionantes vistas del paseo marítimo de Torre del Mar durante todo el año, protegiendo del viento cuando es necesario pero permitiendo una apertura total en los días cálidos. El mobiliario de fibras naturales y textiles ligeros invita a sentarse, relajarse y perder la noción del tiempo.
Haciendo virtud del problema. Distribución de espacios
Las limitaciones espaciales son el mejor combustible para la creatividad. Este apartamento presentaba desafíos que, lejos de frenarnos, nos impulsaron a diseñar soluciones a medida que aportan carácter y funcionalidad.
Dormitorio Principal: Templo del descanso
En el dormitorio principal la cama se ubica en una posición protagonista, centrada en el espacio. El cabecero actúa como una pieza escultórica, jugando con las profundidades y la iluminación creamos una atmósfera íntima y sofisticada, perfecta para recargar energías. El espacio del cabecero no se pierde; se convierte en una zona de almacenamiento extra, vital en apartamentos vacacionales. Por último integramos un armario de gran capacidad con puertas de madera que aportan calidez y textura.
Dormitorio Secundario: Flexibilidad Máxima
Para la habitación de invitados, el reto era diferente. Necesitábamos capacidad para alojar visitas, pero no queríamos condenar la habitación a ser un dormitorio estático lleno de camas que ocupan espacio cuando no se usan.
Dada la dificultad para encajar un sofá-cama cómodo que no saturara el ambiente, optamos por diseñar un mueble a medida con cama integrada. De esta forma, durante el día, la habitación es un espacio diáfano, flexible y ordenado, que puede servir como sala de lectura o juegos. Cuando llega la noche, el mobiliario se transforma para ofrecer el máximo confort. Es la definición de arquitectura flexible: la casa se adapta a ti, y no al revés.
Cocina y Materialidad: La elegancia de lo natural
La cocina se abre al salón pero mantiene su propia identidad visual. Hemos combinado frentes en blanco roto con módulos altos en madera, creando un equilibrio perfecto entre luminosidad y calidez.
El revestimiento efecto mármol en el frente de cocina aporta un toque de sofisticación y la mesa de comedor en madera actúa como nexo de unión, un lugar de encuentro para las largas sobremesas de verano.
Conclusión: Tu proyecto en buenas manos
Este proyecto en Torre del Mar demuestra que una vivienda de verano puede ser tan funcional, elegante y acogedora como una primera residencia. En DIKA, analizamos cada rincón, cada entrada de luz y cada necesidad de nuestros clientes para ofrecer soluciones que van más allá de la decoración: creamos hogares que funcionan.
Si tienes un apartamento en la Costa del Sol y quieres sacarle el máximo partido, ya sea para disfrute personal o para rentabilizarlo, contacta con nosotros. Hagamos que tu vivienda mire al mar como se merece. ¿Hablamos?
PEDIR PRESUPUESTO
CLIENTE
Particular
LOCALIZACIÓN
Torre del Mar (Málaga)
DIMENSIONES
65 m²
Categoría
Interiorismo, Viviendas




