Diseño de apartamentos pequeños | Apartamentos turísticos
Proyecto de Diseño de apartamentos pequeños | Apartamentos turísticos
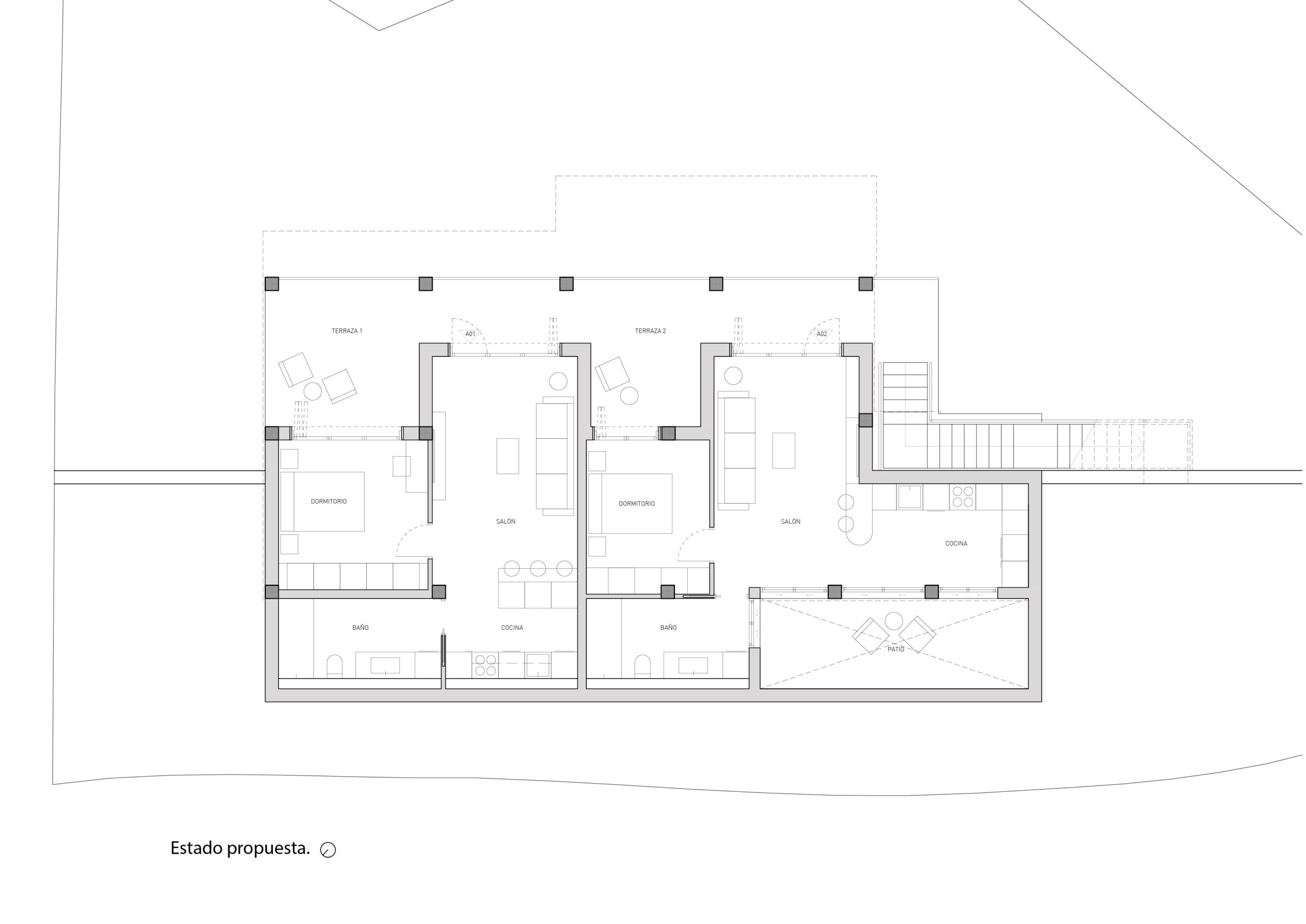
El punto de partida de este proyecto, como se observa en el plano de distribución, consistía en crear dos unidades habitacionales gemelas con una superficie reducida. El desafío principal era transformar la «caja blanca y vacía» inicial en dos hogares acogedores y llenos de vida, además de resolver el correcto funcionamiento de un espacio tan compacto.
Nuestro objetivo fue maximizar la percepción espacial sin sacrificar el confort, aplicando un diseño interior de estilo industrial pero más actual, con influencias del modernismo y del estilo escandinavo. Un proyecto que nace con un objetivo claro: convertir superficies reducidas en activos de alta rentabilidad y máximo confort, ideales para el mercado del alquiler turístico o la vivienda urbana moderna.
Concepto y Materialidad: Una Paleta Orgánica
La transformación del espacio se basa en la materialidad del espacio. Para romper el lienzo original, introdujimos una paleta de materiales que aportan textura y carácter. El uso de un color protagonista para cada apartamento para la cocina, el mueble de la TV, armarios… un recurso que unifica el espacio.
Por otro lado, para contrarrestar materiales mas fríos como el hormigón, empleamos la madera en un tono medio para conseguir un espacio mas cálido y acogedor.
Zona de Día: Salón y Cocina Abierta
En el área social, la cocina abierta se integra fluidamente con el salón. La barra de desayuno actúa como elemento conector y funcional.
El mobiliario se seleccionó cuidadosamente para no saturar el espacio: un sofá modular cómodo en tonos neutros, una mesa de centro llamativa y soluciones de almacenaje que se mimetizan con la arquitectura, como el mueble de televisión bajo y longitudinal.
Zona de Noche: Dormitorio
El dormitorio se concibió como un refugio de descanso. Siguiendo la misma línea estética, se optimizó el espacio con un gran frente de armario empotrado en acabado blanco y detalles de color que soluciona las necesidades de almacenaje, sin añadir saturación visual.
La cama se convierte en la protagonista mediante una composición de ropa de cama en tonos suaves, invitando al relax. Un rincón de trabajo minimalista con escritorio/tocador de madera en vuelo, una silla de tejido suave y un espejo redondo como protagonista, demuestran que funcionalidad y estética pueden convivir en pocos metros.
El Baño
El baño suele ser el gran olvidado, pero aquí lo tratamos como una joya. Apostamos por un pavimento de inspiración hidráulica con patrones geométricos, que aporta ese toque clásico renovado funcionando muy bien para el uso diario. Las paredes combinan un azulejo tipo «metro» colocado en vertical (para estilizar la altura de la estancia) en tono gris suave, con pintura blanca en la parte superior. Por ultimo, incorporamos detalles en negro mate como la grifería, la perfilería de la mampara y los accesorios mate que aportan el contraste moderno y sofisticado necesario para cerrar el look industrial.
Conclusión
Este proyecto es la prueba de que una inversión inteligente en interiorismo multiplica el valor percibido del inmueble.
-
Durabilidad: Materiales como el hormigón, los porcelánicos de calidad y la carpintería a medida están pensados para resistir el alto tránsito del alquiler.
-
Fotogenia: En plataformas de alquiler, la imagen es lo primero que vende. Este apartamento, con sus contrastes y su iluminación cuidada, destaca inmediatamente sobre la competencia.
-
Optimización: Cada centímetro está aprovechado. No hay rincones muertos, solo espacios vividos.
PEDIR PRESUPUESTO
CLIENTE
Particular
LOCALIZACIÓN
Málaga
DIMENSIONES
85 m²
Categoría
Interiorismo, Viviendas




